Podnośnik 2-kolumnowy elektro-mechaniczny Hofmann Duolift MTF 3500C - przeznaczony do podnoszenia samochodów osobowych i dostawczych o masie do 3500kg.

Dwukolumnowy podnośnik elektromechaniczny duolift® MTF 3500C to podnośnik nowej generacji, stworzony z myślą o warsztatach samochodowych obsługujących samochody osobowe, lekkie pojazdy użytkowe oraz auta dostawcze pochodne.
Model ten wyróżnia się niezawodną konstrukcją elektromechaniczną, optymalnym zagospodarowaniem przestrzeni warsztatowej oraz bezpiecznymi rozwiązaniami technicznymi, które umożliwiają efektywną codzienną pracę nawet w ograniczonej przestrzeni warsztatu. Podnośnik duolift® MTF 3500C zapewnia stabilną pracę, precyzyjne podnoszenie oraz długotrwałą niezawodność w intensywnie eksploatowanych serwisach.
Prosta i sprawdzona konstrukcja zapewnia długoletnią bezawaryjną pracę podnośnika.
Podnośnik nie posiada ramy bazowej zapewniając w ten sposób łatwy, bezproblemowy przejazd.
Seria duolift® MTF C - Seria podnośników elektromechanicznych nowej generacji – niezrównana wydajność i wytrzymałość. Występije w wersjach:
- MTF 3000 C - Mistrz warsztatu
- Udźwig 3000 kg
- Idealny do niezależnego warsztatu
- MTF 3500 C - Dynamo dla dealerów
- Udźwig 3500 kg
- Idealny do dealerów samochodowych i serwisów pojazdów elektrycznych
- MTF 4000 C - Wszechstronna siła
- Udźwig 4000 kg
- Nadaje się do podnoszenia samochodów osobowych, SUV-ów i vanów
Cechy:

ŁĄCZNIK GÓRNY
W łączniku górnym umieszczono przewody zasilające i synchronizujące silników oraz przewód wyłącznika termicznego. Wysokość jest regulowana, co pozwala dostosować prowadzenie przewodów do wymagań warsztatu oraz rodzaju pojazdów.

SOLIDNY MECHANIZM
Hofmann duolift® MTF 3000C wyposażono w zintegrowany zbiornik oleju oraz sześć rolek bezobsługowych. Rolki te są znacznie bardziej trwałe niż tradycyjne plastikowe prowadnice ślizgowe.

RAMIONA PODNOSZĄCE
Podnośnik Hofmann duolift® MTF 3000C wyposażony jest w dwa krótkie, 3-stopniowe ramiona oraz dwa długie, 2-stopniowe ramiona.

OPTYMALNA KONFIGURACJA
Kolumny podnośnika ustawiono pod kątem 30°, aby zwiększyć przestrzeń potrzebną do otwierania drzwi pojazdu. Ramiona podnośnika mocowane są do wzmocnionego uchwytu z pinem, co umożliwia dwukierunkowy obrót ramion.

WYTRZYMAŁE KOLUMNY
Kolumny wykonano z formowanego na zimno profilu stalowego i wyposażono w gumowy pas ochronny, który chroni przed iskrami powstającymi podczas spawania lub napraw pojazdu na podnośniku.

SYSTEMY BEZPIECZEŃSTWA
Podnośnik Hofmann duolift® MTF 3000C obsługiwane są za pomocą wyłącznika kierunku ruchu (reverse switch), który można zabezpieczyć przed niepożądanym użyciem.

NAKRĘTKA NOŚNA I ZABEZPIECZAJĄCA
W serii duolift® MTF C zastosowano nakrętkę nośną ze stopu brązu z odlewaną nakrętką zabezpieczającą ze stopu, która jest trwalsza niż nylonowe odpowiedniki.
CE STOP
Seria duolift®MTF C wyposażona jest w ogranicznik CE zamiast mechanicznych osłon stóp, co zapewnia optymalne bezpieczeństwo.
Ogranicznik CE, powszechnie stosowany w windach podjazdowych (np. nożycowych lub czterokolumnowych), automatycznie zatrzymuje wózek 200 mm nad podłogą.
Zwolnienie przełącznika biegu wstecznego i ponowne ustawienie go w pozycji dolnej umożliwia pełne opuszczenie, czemu towarzyszy sygnał dźwiękowy.
OPCJONALNE AKCESORIA (za dopłatą):


Energy set - 2x gniazdo 230V 50 Hz 1pf; 1x szybkozłącze spręzonego powietrza; 2x uchwyt do adapterów podwyższających
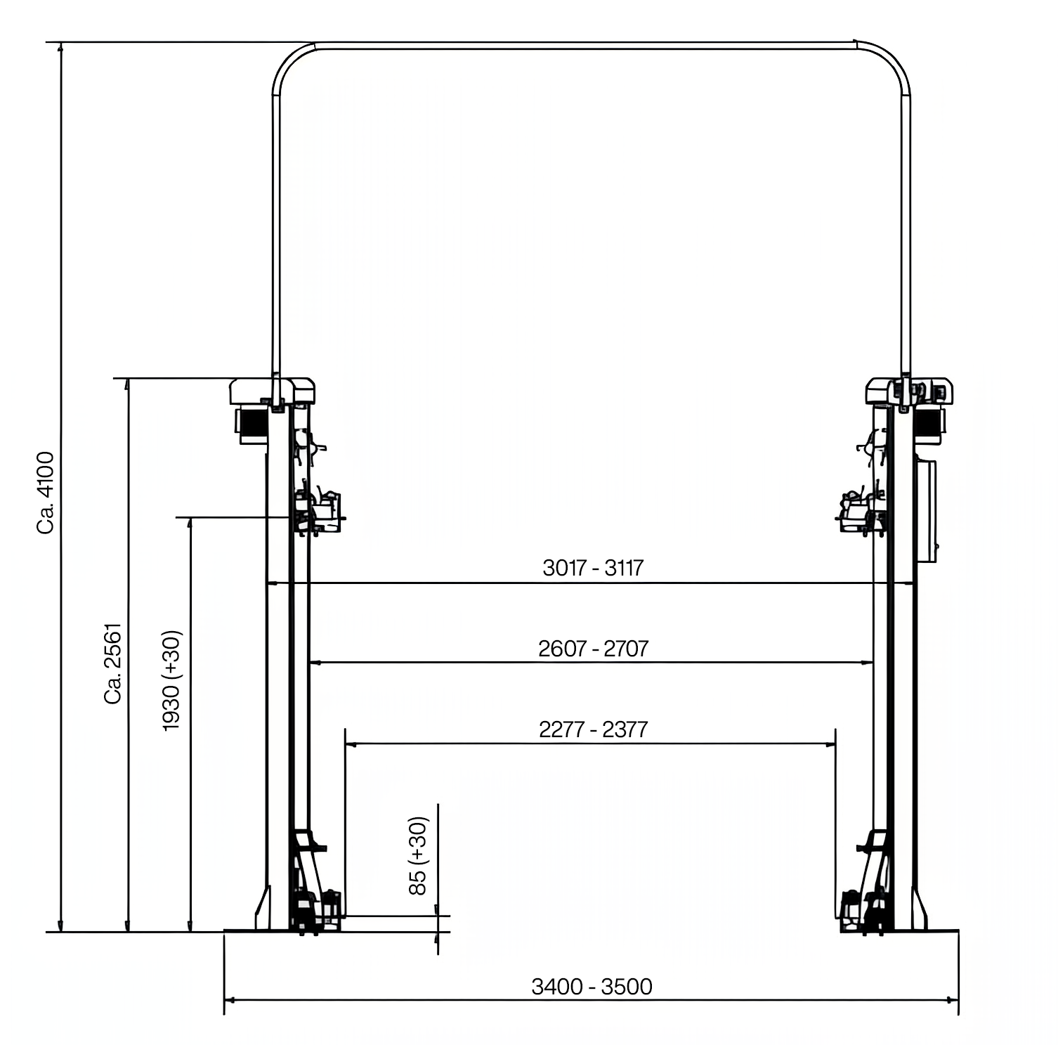
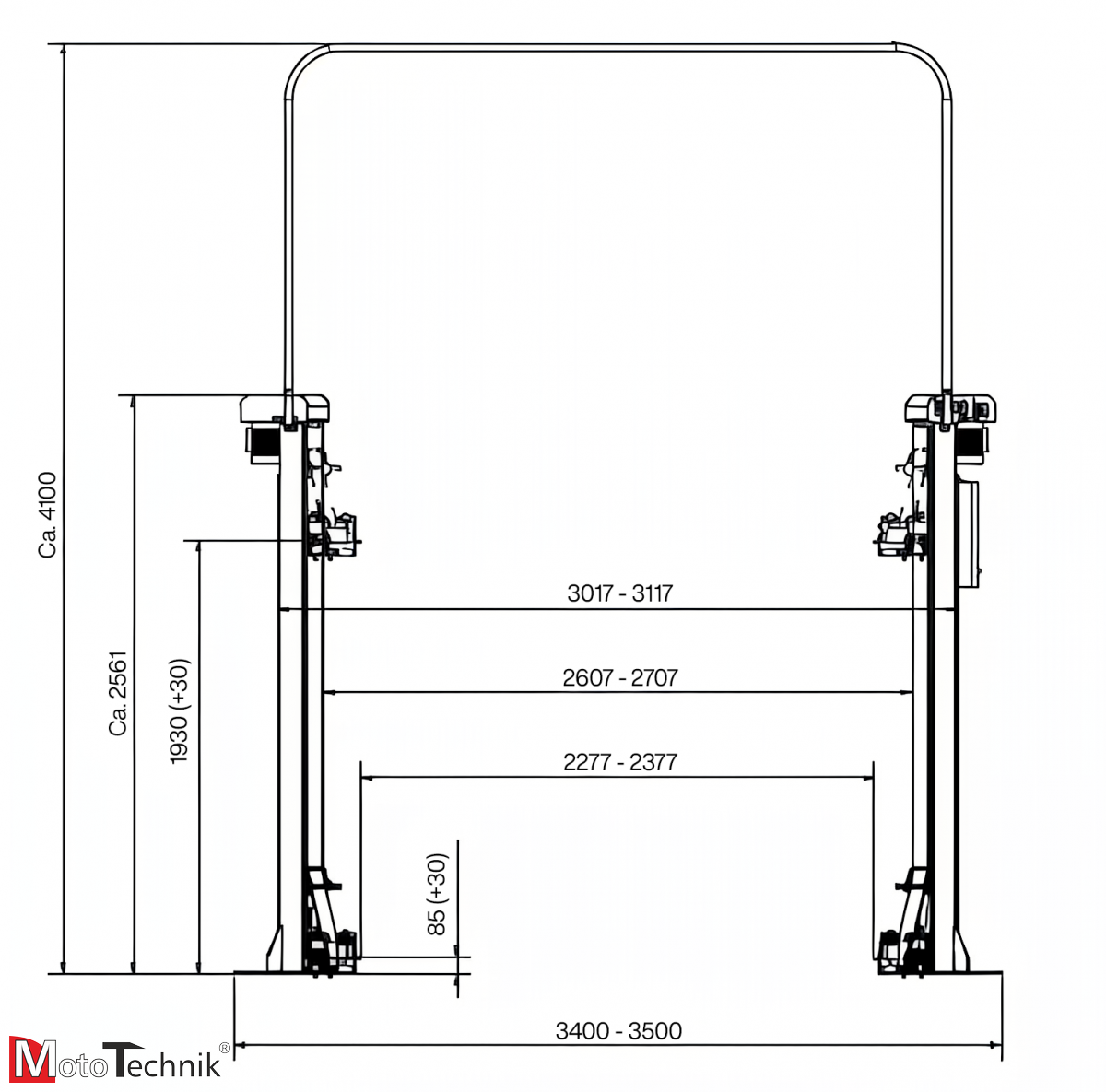
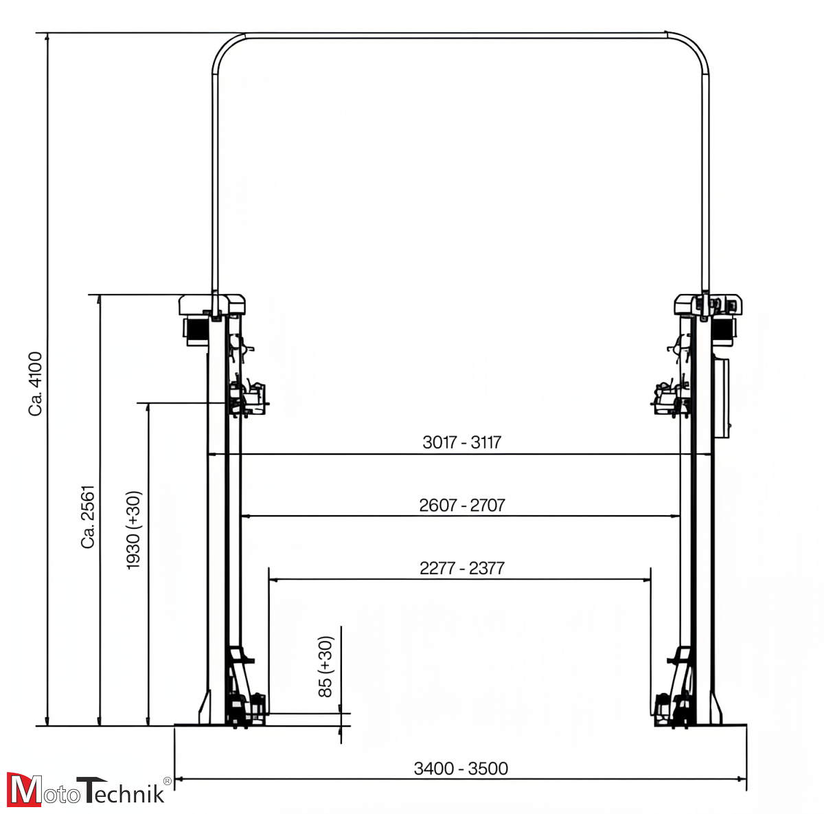
DANE TECHNICZNE:
- Udźwig 3500 kg
- Rozkład udźwigu 3:2 i 2:3
- Zasięg krótkiego ramienia 670 mm – 1314 mm
- Zasięg długiego ramienia 670 mm – 1314 mm
- Szerokość instalacyjna 3400 mm - 3500 mm
- Wysokość bez łącznika górnego 2561 mm
- Wysokość z łącznikiem górnym 4100 mm
- Szerokość przejazdu 2277 mm - 2377 mm
- Wysokość podnoszenia 1930 mm (+30)
- Min. wysokość punktu podparcia 85 mm - 115 mm
- Moc silnika 2 x 2,5 kW
- Zasilanie 400 V
- Pobór prądu 16 A
- Bezpiecznik zwłoczny 20 A
WYMIARY:


Fundament:
- Pod podnośnik wymagany jest jednolity fundament o min. grubości 200 mm wykonany w klasie C20/25.
- Grubość warstwy nawierzchniowej w przypadku posadzki wykonanej np. z jastrychu, płytek, powłoki z tworzywa sztucznego itp., nie powinna przekraczać 50 mm. Głębokość zagłębienia kotwy w warstwie betonowej fundamentu powinna wynosić min. 125mm.
- Wymiary płyty fundamentowej: 4000 mm x 1000 mm.
- Kotfy:
- MTF 3000C / MTF 3500C
- 12 × kotwa M12 × 110/88 mm
- Typ: HAS-U 5,8 – M12 × 220
- 12 × wkład kotwiący kompozytowy HVU2 12 × 110 mm
- 12 × podkładka A13 DIN 9021-ST ocynkowana
- MTF 4000C
- 12 × kotwa M16 × 260 mm
- Typ: HAS-U 5,8 – M16 × 260/108
- 12 × wkład kotwiący kompozytowy HVU2 M16 × 125 mm
- 12 × podkładka 17 DIN 7349 ocynkowana
