Podnośnik dwukolumnowy Nussbaum Smart Lift 2.35 SLE EV
Wyposażonych w elektroniczną synchronizację i napęd dwusilnikowy. Przeznaczony do obsługi samochodów osobowych, terenowych i dostawczych o masie do 3500 kg.
Mechanizm podnoszenia jest wyposażony samosmarujące nakrętki z Nylatronu®, na które NUSSBAUM udziela wydłużonej gwarancji. Podnośnik ma asymetryczną budowę, dzięki czemu ułatwiony jest dostęp do kabiny pojazdu. Sterowanie podnośnikiem zintegrowane jest z kolumnami, a panel kontrolny posiada diody sygnalizujące i jest wbudowany w kolumnę podnośnika. Elektroniczna synchronizacja pozwala na równomierne podnoszenie wózków nośnych. Silniki zabudowane są w kolumnie.
Kolumny i ramiona podporowe są spawane w najnowocześniejszych zakładach spawalniczych Nussbaum, śrutowane, a następnie malowane proszkowo metodą grau.
Podnośnik wyposażony jest w podwójne teleskopowe ramiona o niskim punkcie podnoszenia i obracaną przednią częścia ramion w zakresie 180 stopni, co zapewnia optymalną elastyczność i prześwit pod podwoziem w pojazdach elektrycznych.

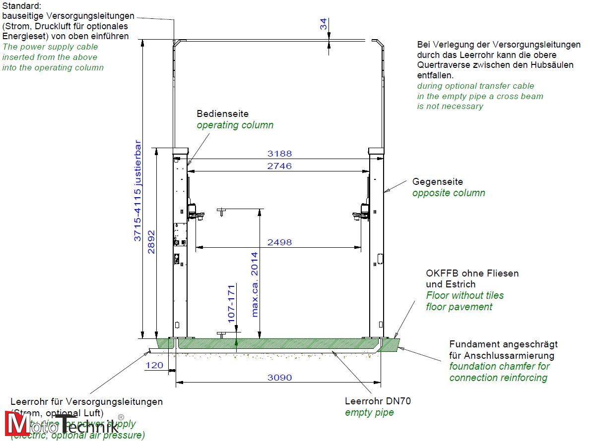
Podnośnik jest zaopatrzony w gniazdko 230V i szybkozłącze sprężonego powietrza (Energy-set wbudowany w jedną kolumnę podnośnika).
Cechy:
- Brak ramy - wolny przejazd
- Asymetryczna budowa - dostęp do drzwi pojazdu z obu stron
- Automatyczna blokada ramion
- Napęd elektro-mechaniczny poprzez dwa silniki
- Wielopasmowe przekładnie napędowe
- Panel kontrolny z wyświetlaczem LED- zintegrowane działanie kolumn
- Elektroniczna synchronizacja wózków
- Cicha praca
- Regulowana wysokość podejmowania pojazdu: 95 - 140 mm
- Energy-set zamontowany na jednej z kolumn podnośnika
- CE-Stop
- DUŻY ZASIEG RAMION:
- ramiona krótkie: 570 - 1160 mm
- ramiona długie: 940 - 1495 mm

Opcjonalne akcesoria:
- Adapter podwyższający 44 mm (zestaw 4 szt.)
- Adapter podwyższający 151 mm (zestaw 4 szt.)
- Adapter podwyższający 155 - 195 mm (zestaw 4 szt.)
- Adapter podwyższający 190 - 240 mm (zestaw 4 szt.)
Podnosi duże SUV'y, Smart, Sprinter, Volkswagen T5 / T6 długie i więcej
Ramiona podnośnika Nussbaum Smart Lift 2.35 SL EV:


Fundament:
Pod podnośnik wymagany jest jednolity fundament o min. grubości 200 mm wykonany w klasie C20 (B25).
Grubość warstwy nawierzchniowej w przypadku posadzki wykonanej np. z jastrychu, płytek, powłoki z tworzywa sztucznego itp., nie powinna przekraczać 50 mm. Głębokość zagłębienia kotwy w warstwie betonowej fundamentu powinna wynosić min. 150mm.
Wymiary płyty fundamentowej: 3750 mm x 1600 mm.

Dane Techniczne:
| Udźwig: | 3500 kg |
| Wysokość podnoszenia: | 2010 mm |
| Wysokość całkowita: | 3200 - 4650 mm |
| Szerokość całkowita: | 3230 mm |
| Szerokość między kolumnami: | 2650 mm |
| Szerokość przejazdowa: | 2400 mm |
| Minimalny prześwit pojazdu: | 95 - 140 mm |
| Zasięg ramion krótkich: | 570 - 1160 mm |
| Zasięg ramion długich: | 940 - 1495 mm |
| Wysokość kolumn: | 2892 mm |
| Czas podnoszenia: | 46 s |
| Moc silnika: | 2 x 1,5 kW |
| Zasilanie: | 380-415 V 3ph 50 Hz |
| Masa własna: | 690 kg |
.png)
Produkt można również zakupić na raty lub przez leasing. W tej sprawie proszę o bezpośredni kontakt z nami telefonicznie lub mailowo.
Na podstawie 0 opinii
ogólnie